Die Hausmannstürme als Nachbar… Stilvolle 3 Zimmerwohnung am Hallmarkt!
Objektbeschreibung
Kurzbeschreibung
Achtung Denkmalschutz! Kein Energieausweis erforderlich!
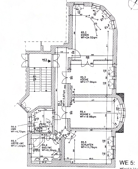
Diese elegante und exklusive Wohnung befindet sich direkt am historischen Hallmarkt im 3.OG in Halle/Saale. Der klassisch lange Flur mit den abgehenden Flügeltüren lässt das Herz gleich höher schlagen.
Das Wohnzimmer, mit Blick auf die Hausmannstürme, lässt sich ideal durch Flügeltüren zur Wohnküche erweitern. Sie haben hier sogar die Möglichkeit eine moderne Einbauküche mit Kochinsel vom aktuellen Mieter zu erwerben. Das macht den Einzug doch gleich einfacher!
Zwei weitere Zimmer können künftig als Schlafzimmer oder Kinderzimmer genutzt werden. Das Wohlfühlbad mit Eckbadewanne, Dusche und Doppelwaschbecken bietet ausreichend Platz um morgens auch zu zweit Platz im Bad zu finden.
Zusätzlich haben Sie hier in der Grundrissaufteilung ein Gäste WC und einen kleinen Hauswirtschaftsraum.
Sie werden bereits bei der ersten Besichtigung feststellen, dass hier mit Liebe zum Detail der Altbaustil erhalten blieb
In nur wenigen Gehminuten erreichen Sie von Ihrem neuen Zuhause den halleschen Marktplatz mit seiner hervorragenden Infrastruktur.
Die abgebildeten Fotos wurden in der Wohnung im 2.OG aufgenommen. Die ausgeschriebene Wohnung ist baugleich. Aus Disketion dem aktuellen Mieter gegenüber, haben wir die Bilder aus dem 2.OG für die Präsentation genutzt.
Ausstattung
Was erwartet Sie:
- repräsentatives Wohn- und Geschäftshaus
- 3 Zimmer, Küche, Badezimmer, Gäste-WC
- Abstellraum, separater Hauswirtschaftsraum
- separate große Wohnküche
- moderne Sanitärelemente
Sonstige Informationen
HINWEIS: Wir bitten Sie, unsere allgemeinen Geschäftsbedingungen und die gemäß neuen EU-Verbrauchrichtlinien seit 13.06.2014 geltende Widerrufsbelehrung zu beachten. Wünschen Sie weitere Unterlagen, Informationen oder einen Besichtigungstermin bereits innerhalb der 14 tägigen Widerrufsfrist, bitten wir Sie dies ausdrücklich zu erklären.
Gerne stehen wir Ihnen auch für unsere amtlich anerkannte, professionelle 3A Verkehrswerteinschätzung inkl. Marktwertanalyse zur Verfügung. Rufen Sie uns einfach an und vereinbaren kurzfristig einen Termin!
Objektdaten
-
Objekt IDCaS-1817-2025-WM
-
ObjekttypenEtagenwohnung, Wohnung
-
AdresseSalzgrafenstraße 1a
(Altstadt)
06108 Halle (Saale) -
Etage3
-
Etagenanzahl im Haus4
-
Wohnfläche ca.110 m²
-
Zimmer3
-
Schlafzimmer2
-
Badezimmer1
-
BefeuerungGas, Etagenheizung
-
Baujahr1930
-
Zustandteil-/vollrenoviert
-
Verfügbar abJuni 2026
-
Veroeffentlichen1
-
Veroeffentlichen1
-
Nebenkosten150 EUR
-
Kaution1.960 EUR
-
Kaltmiete980 EUR
-
Miete pro m²8,91 EUR pro m²
-
Nettokaltmiete980 EUR
-
Gesamtbelastung brutto1.130,00 EUR
-
Summe Miete netto980,00 EUR
-
Sonstige PreisangabenAchtung:
Denkmalschutz, kein Energie-Ausweis erforderlich! -
Betriebskosten (netto)150 EUR
-
Gesamtmiete1.130 EUR
Energieverbrauchsausweis
Exposé
Lage
Der Hallmarkt in Halle/Saale ist einer der mittelalterlichen Siedlungskerne der Stadt, Zentrum der Salzgewinnung und ist heute eine gründerzeitliche Platzanlage.
Der Platz liegt im Westen des Stadtzentrums zwischen Marktplatz und der heute überbauten Gerbersaale, einem Seitenarm der Saale.
In näherer Umgebung befinden sich Restaurants, Bars, diverse Schulen, Arztpraxen sowie viele Einkaufsmöglichkeiten.
Die Wohnung ist zentral gelegen und es sind jede Menge Erholungsmöglichkeiten vorhanden.
Ausstattung
- Badewanne
- Denkmalgeschützt
- Dusche
- Fahrradraum
- Fliesenboden
- Gäste-WC
- Keller
- Laminatboden
Ihr Ansprechpartner
-
NameHerr Pascal Schütz
-
Firma3A Immobilien GmbH
-
AdresseHerrenstraße 20 (Glauchaer Platz)
06108 Halle -
E-Mail Zentrale
-
E-Mail Direkt
-
Tel. Zentrale
-
Tel. Durchwahl



















